HEX LED MAS1026
HEX LED MAS1026
-
Modernus dizainas: Unikali šešiakampė forma pagerina bet kurios erdvės estetiką.
-
Individualizuojamas: Siūlo reguliuojamo ryškumo lygmenis, pritaikomus skirtingoms nuotaikoms ir progoms.
-
Energiją taupantis: Aukštos efektyvumo LED technologija taupo energiją ir turi ilgą tarnavimo laiką.
-
Lanksti montavimo galimybė: Paprasta įrengti su įvairiomis tvirtinimo parinktimis.
-
Mažai priežiūros reikalaujantis: Patvarus ir reikalauja minimalios priežiūros, užtikrinant patogų naudojimą.
| Parametras | Reikšmė |
|---|---|
| Modelio numeris | MAS1026 |
| Spalvos temperatūra | Balta (6500K) |
| Darbinė temperatūra | -40 — 60 °C |
| Spindulio kampas | 180° |
| IP klasė | IP54 |
| Galia | 552 W |
| Įtampa | AC 100–240 V |
| Šviesos paviršius | 22 mm |
| Šviesos srautas | 110–130 lm/W |
| CRI (spalvų atgava) | ≥ 90 |
| Palaiko pritemdymą | Taip |
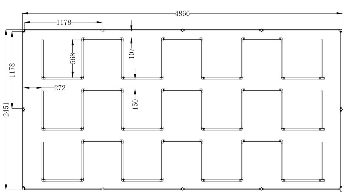
| Dydis | 2451 × 4866 mm |
| Garantija | 2 metai |
| Darbo laikas | 50 000 val. |
| LED vamzdžiai | 568 mm × 45 vnt., 1178 mm × 12 vnt. |
| 90° jungtys | 42 vnt. |
| 180° jungtys | 8 vnt. |
| T jungtys | 4 vnt. |
| Maitinimo kabelis | 4 vnt. |
| Gamintojas | MASER LIGHTING |
Informacija ruošiama
Informacija ruošiama






